Anaheim’s Planning Commission has approved plans for a new Disney Vacation Club Tower at the Disneyland Hotel. The City of Anaheim Planning Commission approved a conditional use permit for a 12 story, 350-unit Disney Vacation Club Tower at the Disneyland Hotel.
The decision was unanimous with all seven council members voting yes. Several of the commissioners were very enthusiastic with some even saying this project was “long-awaited.”
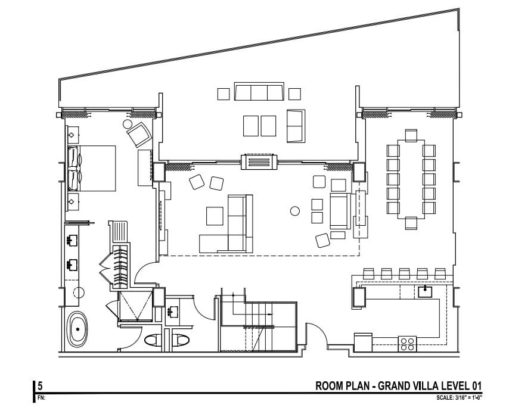
The new tower will include a pod, studio, 1-bedroom lock-off, 2-bedroom, and both floors of a grand villa. The layouts can be seen below. They come from a 1,600 Anaheim Planning Commission that shares all of the details of the new Disney Vacation Club Tower.
The Disneyland Hotel Disney Vacation Club Tower will also include a Mickey Mouse inspired pool. This will include an interactive water feature with an interactive wet play area. Concept art shows how Mickey Mouse will be recognized and honored in the final project.

If all goes as planned, this Disney Vacation Club Tower at the Disneyland Hotel will be opening in 2023. At this point, nothing is for sure though. Coronavirus has changed lots of plans and timelines. DAPS MAGIC will continue to follow this story and provide updates as they become available.
What do you think of this new Disney Vacation Club Tower at the Disneyland Hotel? Share your thoughts in the comments below or with DAPS MAGIC on Facebook or Twitter!














